Page suivante
Page précédente
Cannes (06400)

Appartement 3 pièce(s) 2 chambre(s) 83.5 m²

1
Balcon
Ascenseur
398 000 €
Réf 95

Superbe 3 pièces traversant avec terrasse
Au cœur d’une belle copropriété de bon standing, découvrez ce magnifique appartement 3 pièces traversant situé en étage avec ascenseur. Dès l’entrée, vous serez immédiatement séduit par son ambiance chaleureuse et sa belle luminosité.

Le séjour spacieux s’ouvre sur une cuisine conviviale, formant un bel espace de vie prolongé par une agréable terrasse exposée, idéale pour profiter de moments de détente en toute tranquillité.

L’espace nuit se compose de deux belles chambres, d’une salle de bains confortable et d’un WC séparé. Les fenêtres ont été récemment changées, vous garantissant un excellent confort thermique et acoustique.

L’appartement bénéficie d’un calme absolu tout en étant à proximité immédiate des commodités, dans un environnement paisible et recherché.
Un bien rare qui allie harmonieusement espace, confort et qualité de vie.


Les informations sur les risques auxquels ce bien est exposé sont disponibles sur le site Géorisques

Bilan énergétique

Diagnostics énergetiques
A propos de ce bien Caractéristiques de ce bien
  • Surface 83,50 m²
  • carrez 83,50 m²
  • séjour 35,89 m²
  • 2 chambre(s)
  • 1 salle(s) de bain
  • cuisine américaine
  • Chauffage autre : autre (gaz)
  • 1 garage(s)
  • exposition Sud-Est
  • 1er étage
  • ascenseur
  • vue Dégagée, Jardin, Ville
  • cave
  • balcon
  • interphone

Composition

Composition de ce bien

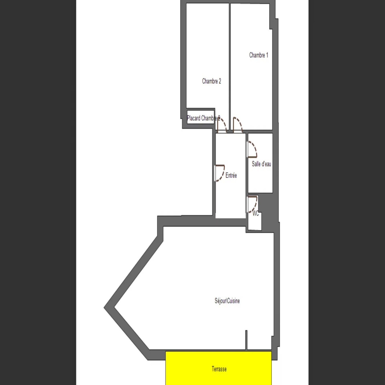
Rez-de-chaussée

  • chambre 14.21 m²
  • chambre 13.69 m²
  • cuisine 8.09 m²
  • entrée 7.19 m²
  • salle de bain 3.86 m²
  • WC 1.12 m²
  • salon/sejour 35.89 m²
  • balcon 7.89 m²
  • cave 4.23 m²
  • garage 13 m²

Info copro

Copropriété
  • Copropriété Oui
  • Nombre de lots 58
  • Quote part annuelle des charges 1 200 €

Financier

Informations financières
Prix de vente honoraires TTC inclus 398 000 €
Taxe foncière annuelle 1 560 €

Simulation

Calcul des mensualités
* Champs obligatoires
BELIYZ IMMOBILIER Agence