Page suivante
Page précédente
Saint-Barthélemy (77320)

Propriete 9 pièce(s) 5 chambre(s) 250 m²

1048 m²
2
417 000 €
Réf 111

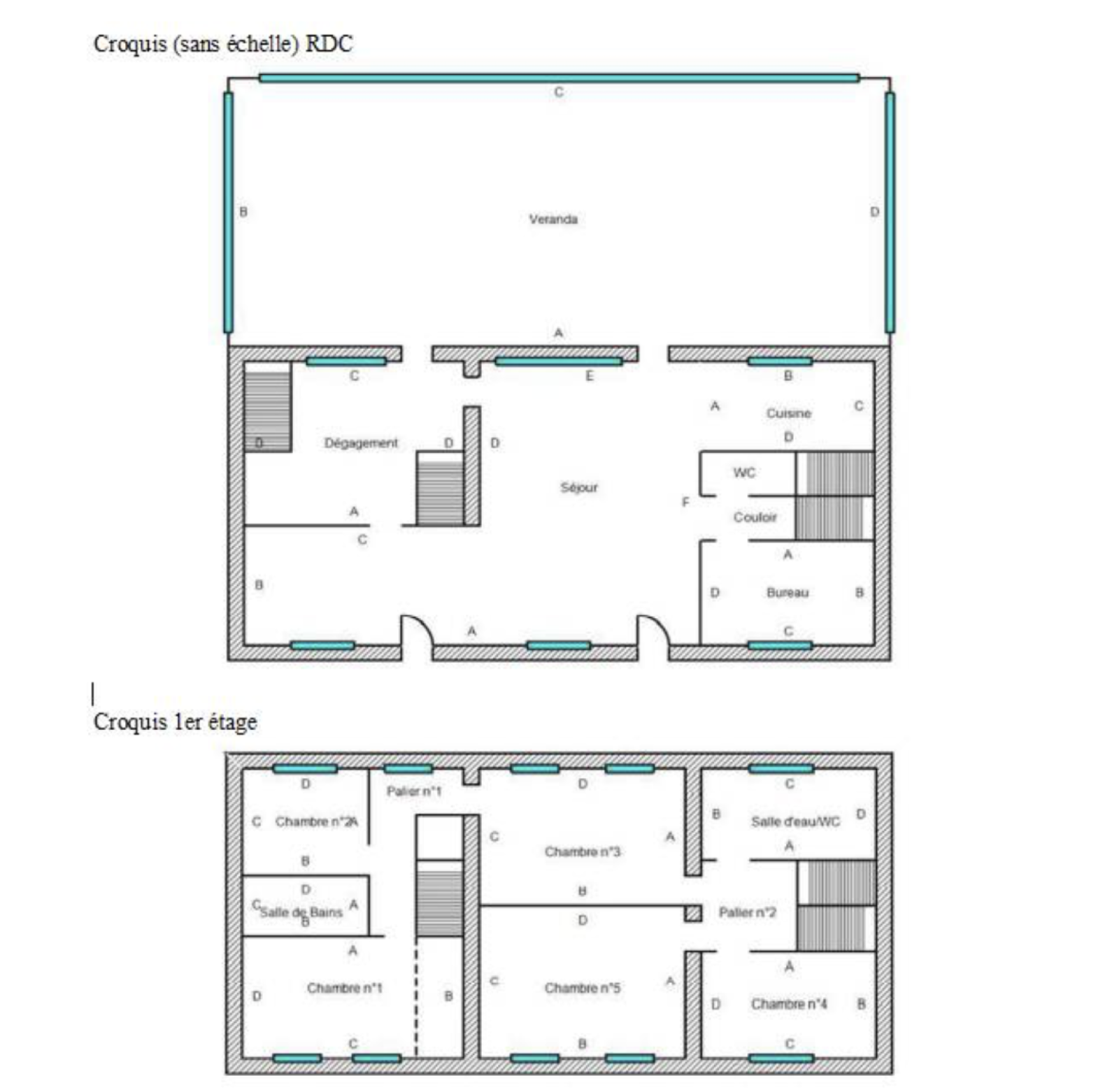
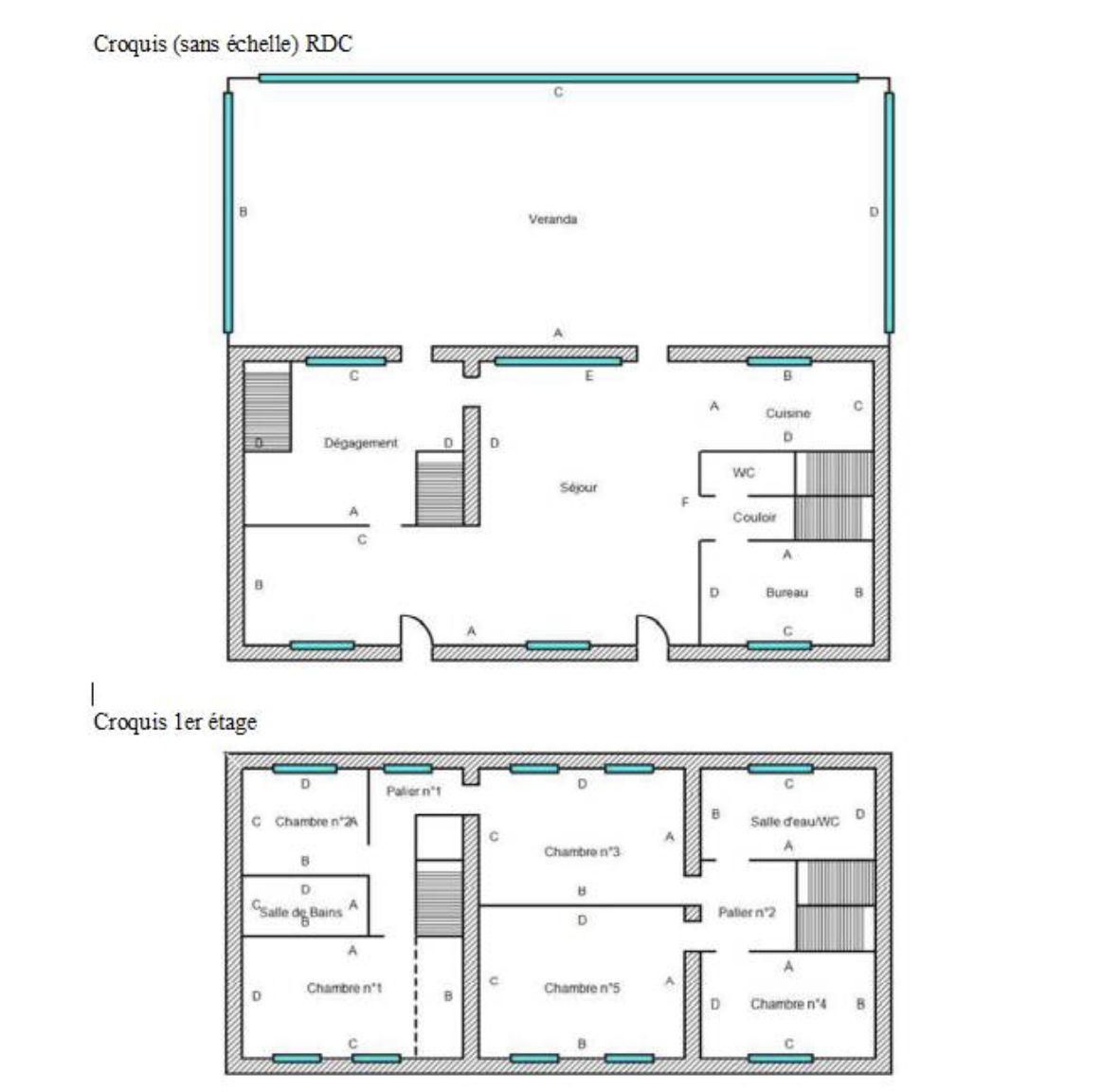
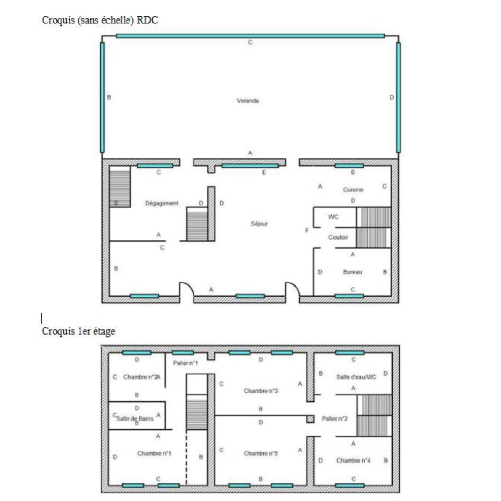
À Saint-Barthélemy, à seulement 6 minutes de La Ferté-Gaucher et une heure de Paris, cette magnifique meulière du XIXᵉ siècle rénovée allie charme ancien et confort moderne. Ancien relais des Postes, elle offre 250 m² habitables baignés de lumière et une superbe vue sur la campagne environnante.

Le vaste salon-séjour avec poutres apparentes, la cuisine ouverte équipée, les cinq chambres et les espaces de détente en font une maison familiale conviviale et élégante. La véranda panoramique de 71 m² prolonge agréablement les espaces de vie.

De plus vous trouverez des combles isolées de 50 m2 à finir d'aménager et un sous-sol total (72 m2) composé d'un atelier (24 m2) et de 3 caves.

Édifiée sur un terrain clos et arboré de 1 048 m² avec deux garages, puits et bassin en pierre à restaurer, cette propriété bénéficie d’un cadre paisible et d’un village vivant avec écoles et services.

Pompe à chaleur neuve, toiture isolée, DPE B, GES A. Un bien rare, authentique et prêt à vivre.

Bilan énergétique

Diagnostics énergetiques
A propos de ce bien Caractéristiques de ce bien
  • Surface 250 m²
  • terrain 1 048 m²
  • 5 chambre(s)
  • Chauffage individuel : trad_type_chauff_air_eau (pompe à chaleur)
  • 2 garage(s)
  • exposition Nord-Sud
  • 2 niveau(x)
  • vue Dégagé sur la Campagne

Financier

Informations financières
Prix de vente honoraires TTC inclus 417 000 €
Taxe foncière annuelle 1 722 €

Simulation

Calcul des mensualités
* Champs obligatoires
BELIYZ IMMOBILIER Agence